![]()
ナウシカ Cottage 住居用ログハウス
主な設備 備品
………………………………………………………
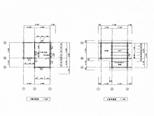
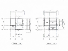
住居用ログハウス(ログ厚み92mm)
ロフト付
ログハウス窓(外開き)(カーテン付き)
システムキッチン(コンロ3口)
お風呂(シャンプー等石鹸、洗面用具、タオルありません)
ウオシュレット付トイレ
洗面所
洗濯機
冷蔵庫・炊飯器・電子レンジ
食器・包丁・フライパン等調理用具
寝具一式8セット
バーベキューの屋根はキキ・シータと同じ4つ足カーポート
バーベキュー専用アイランドキッチン
足洗い場
定員4名 普通自動車2台までならば超過可能
。
くわしくは、こちらを見てください。
イチローコメント(まったく参考になりません。別に読まなくても支障なしです。)
………………………………………………………
春さくらコテージ最後の宮崎ワールド、大物レディーキャラの登場です。
コンセプトは家族が普通に住める事です。
「何それ」という声が聞こえてきそうですが、そこが一番重要なのです。
はい重要な話をしましょう。
皆様耳の穴ほじって聞いて下さい。そしてすぐ忘れて下さい。
私も41歳昨年本厄ぬけました、なにもおこりませんでした。しかし男は40を超えればいろいろな事を考えてしまいます。
何を考える? それは・・・・・
今俺がいなくなれば、どうなるのかです。
「変わらないでしょう」「誰かが引き継ぎますよ」そんな声が聞こえてきそうですが?
はいそのとうりです、たいして変わりません。
よく「俺がいなけりゃ~前にすすまね~」 「俺が現場にいないいと施工できないい~」
よく先輩や、社員が言っているのを聞きましたが、私の経験ではその人が会社を辞めても新しい人や、引き継いだ社員が、うまくこなし、まったく問題がありませんでした。
それどころか、改善される事もありました。
私が言う、今おれがいなくなればどうなる?は、この秘境天川村に新しい管理人に来て頂いた時、どこに住んでもらうかなのです。
一番良いのはコテージ内に住んでもらうのがベストです。そこで1番良いのがナウシカの場所です。
若い家族が住めるように小さいですが考えました。
ナウシカをお客様にレンタルできるのは私がいる間のみですハハハハハ
俺が死んだらどうなる話はここまでで、ナウシカのアピールを
最初は8名定員、最大10名(繁忙日32000円・平日24000円)で考えていましたが、一番静かな場所お客様にはゆったりしてもらいたい、(本音は静かにしてもらいたい)
ここは思い切って4名定員・最大8名とします。(繁忙日24000円、平日18000円)
小コテージ(4名定員)の中では、繁忙日6000円も高いですが、この料金頑張りました。(コテージの建設費はシータ以上です。)
あまりお金に執着していない私ですが、すこし悩みました。
「よしチームのエース シータよ頑張ってくれ」
「シータよ、プール・Bar・ナウシカの事をたのむ!!」
ですので、8名を超える事は出来ません。(幼児の超過も無理です。)
静かでゆったりできる事を最優先しています。
(8名超えるぐらいなら初めから8名定員最大10名にします)8名超える場合ぜひキキへ。
施設はシータよりよいです。
単独のお風呂、単独のトイレ、なんと洗濯機付、そしてロフト。
8名宿泊されてもリビング寝室別、バーベキューも4つ足大きい屋根で大雨が降っても大丈夫。
そして今回初めてバーベキュー用アイランドキッチン。
最後に、私が嫁と娘とルナ(チワワ)に捨てられたらここに住みたいです。
![]()




